欢迎光临~太阳成集团tyc122cc
:400-800-8232、13922709440

方舱

  • 方舱发热门诊
方舱发热门诊

方舱发热门诊

  • 方舱发热门诊
  • 方舱医院
  • 方舱隔离病房
  • 产品描述: 太阳成集团tyc122cc专业特种车厂家,执行“太阳成集团tyc122cc品质、冠军服务”的质量方针。研发改装方舱发热门诊,方舱医院,方舱隔离病房,咨询热线:400-800-8232
  • 在线订购
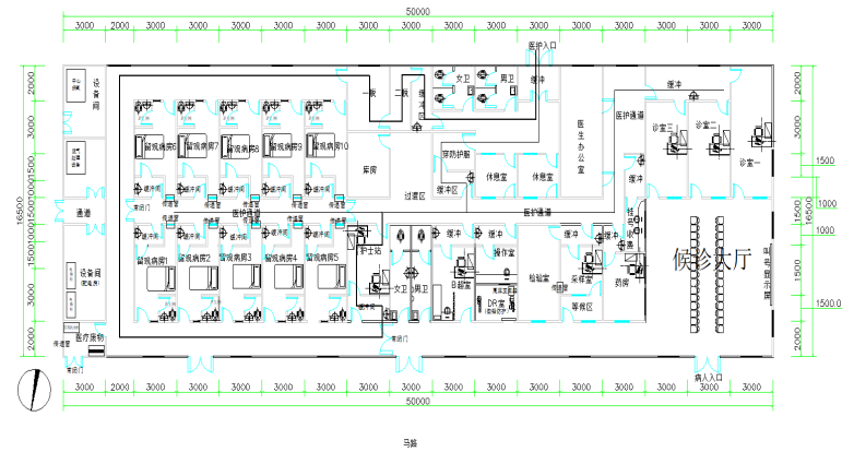
方舱发热门诊是依据《国家卫生健康委办公厅关于完善发热门诊和医疗机构感染防控工作的通知》研发制造的。它能解决很多乡镇医院面积小,没有独立的发热门诊的问题。方舱发热门诊和医院的发热门诊一样,具有独立性,和普通患者分开,一站式解决分诊,感染防控,救治等问题。

方舱发热门诊可以对疫情外防输入、内防反弹,它安装方便快捷,是由各个不同功能集装箱拼装而成,不需要进入医院大厅就可以实现就诊,检查,治疗。避免交叉感染。分流发热病人,降低感染风险。早发现、早报告、早隔离、早治疗。

独立的发热门诊,方舱发热门诊可以满足复工后防疫所需。它具有模块化集装箱组合特点,可以根据实际需要拼装。方舱发热门诊可以有医疗室,病房室,CT检查室等,具有安装简便,机动性强,环境适应高科学耐用等特点。

上一个:运兵车 下一个:单轴车载CT


联系我们

联系人:13922709440 余先生

销售热线:0724-4016818

售后服务:19171569097

服务热线:400-800-8232

邮 箱:xianhao266@163.com

公 司:太阳成集团tyc122cc

地 址:湖北省钟祥市南湖新区协企联盟产业园C6栋


用手机扫描二维码关闭
二维码